Stappen maken met ruimtelijke ordening
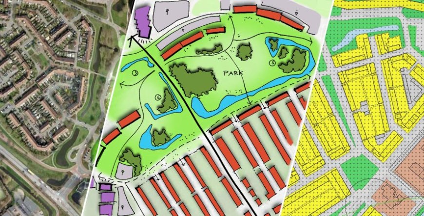
Er is weer een bericht de afgelopen dagen verschenen over verzet van buurtbewoners tegen een bepaald bedrijf dat zal komen in hun woonomgeving. Eerder was er een bericht over verzet van buurtbewoners tegen een callcenter dat grootschalig ook in de avond- en ochtenduren operationeel zou zijn. Met deze voorvallen is de noodzaak voor bestemmingswetgeving weer […]
Jul 30, 2025 - 09:57
Er is weer een bericht de afgelopen dagen verschenen over verzet van buurtbewoners tegen een bepaald bedrijf dat zal komen in hun woonomgeving. Eerder was er een bericht over verzet van buurtbewoners tegen een callcenter dat grootschalig ook in de avond- en ochtenduren operationeel zou zijn. Met deze voorvallen is de noodzaak voor bestemmingswetgeving weer […]
Lees ook
Minister Pokie: Georganiseerd patroon misstanden rond Moni Karta
Minister Diana Pokie van Sociale Zaken en Volkshuisvesting benadrukt dat er erns...
Minister Bee: “SRD 500.000 wordt ingezet voor jaarafsluiting: het ministerie gaa...
Minister Marinus Bee van Binnenlandse Zaken (Biza) bevestigt dat het bedrag van ...
Validatie energiebeleidsdocument binnenland van start
PARAMARIBO – Het ministerie van Natuurlijke Hulpbronnen (NH) heeft op 10 decembe...
‘Inderdaad geen formeel verzoek van Suriname voor visum-afschaffing’, stelt Bouva
Er ligt inderdaad geen formeel verzoek van Suriname bij de Europese Unie voor en...
Simons: schuldherschikking noodzakelijk om financiële stabiliteit te waarborgen
Zonder ingrijpen zou Suriname binnen enkele jaren worden geconfronteerd met onho...
Regering ondanks ernstige misstanden binnen vijf maanden op koers
PARAMARIBO – Bij haar aantreden werd de regering geconfronteerd met forse uitdag...